PORTFOLIO >

Bootlegger

South African local lifestyle café brand.
SECTOR

Commercial Retail

CLIENT NEED

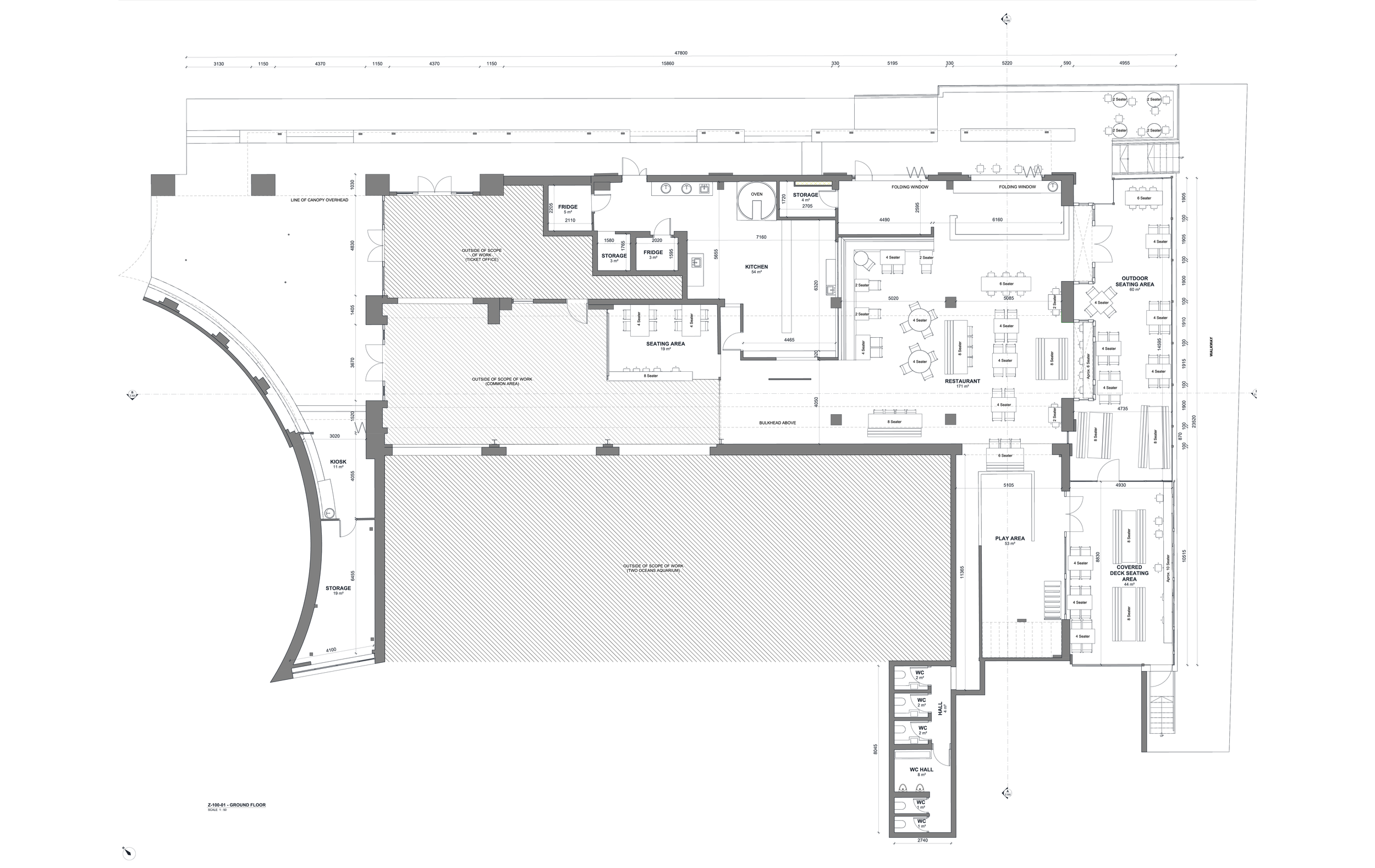
Document as-built conditions for refurbishment and update the building plans.

FIREFFLY DIGITISED SOLUTION

Verified digital model to use as an accurate reference point for future expansion, upgrades, and for lease area verification.

IMPACT

✔ Virtual Tour
✔ Furniture Layout
✔ MEP Services

Previous
Previous

The Hilton Hotel

Next
Next

Wytham Estate