PORTFOLIO >

Drakenstein

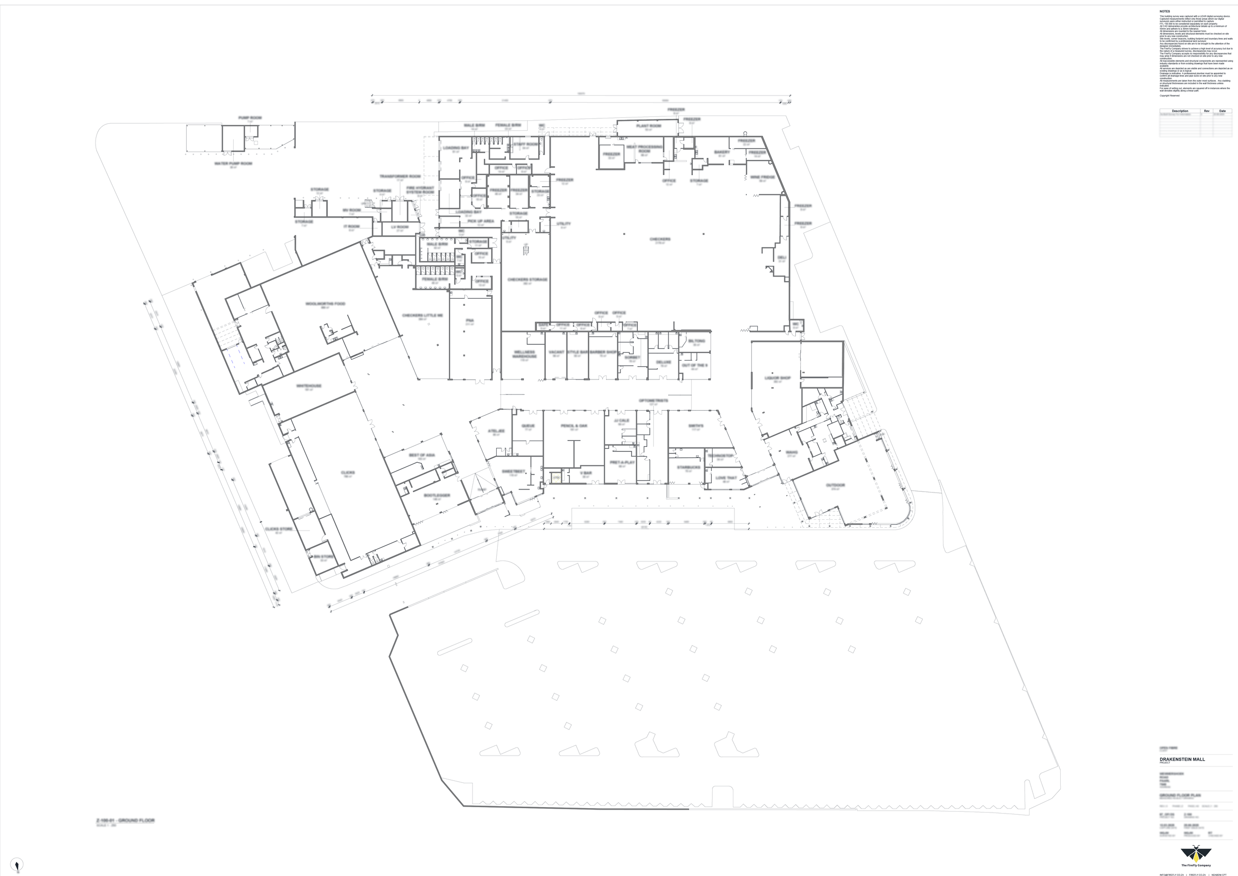
Retail Shopping Centre
SECTOR

Commercial Retail

CLIENT NEED

An audit was required to confirm the actual positions of telecommunication infrastructure after installation.

FIREFFLY DIGITISED SOLUTION

A base set of drawings indicating actual positions of telecommunication infrastructure together with a deviation report on planned vs. actual installed positions.

IMPACT

✔ Verified Digital Model
✔ Visual Deviation Report

Previous
Previous

Trovato House

Next
Next

The Saxon Hotel